Implementacija BIM-a u "uhodane" procese arhitektonskog projektiranja često je praćena neargumentiranim strahovima. Razlog je uglavnom neiskustvo i slabo poznavanje prednosti takvog rješenja. Ne tvrdimo da je to uvijek bezbolno i jednostavno ali iskustva korisnika ipak na kraju pokazuju jedinu realnu sliku. U nastavku prenosimo iskustva arhitektonskog studia Helman&Jukić prilikom uvođenja Autodesk Revita kao jedinog alata za projektiranje.

Logo - Helman & JukićArhitektonski studio Helman & Jukić od 2000. godine projektira, nadzire građenje i savjetuje investitore na brojnim poslovnim, stambenim i infrastrukturnim građevinama. Uočivši da se gradnja u razvijenim zemljama svijeta kreće u smjeru čvršće suradnje između projektanata različith struka, te projektanata i izvođača, a sve putem BIM-a, odlučujemo implementirati Revit Architecture u svoj rad.

Od 2010. godine Autodesk Revit Architecture je najvažniji programski i jedini projektantski alat u našem uredu.

IMPLEMENTACIJA

Tipičan razlog za izbjegavanje migracije na novi programski alat, ili novi sustav rada općenito, je bojazan da će baza ranijih radova, detalja i sl., prelaskom na novi softver postati beskorisna. Korisnik uredskog prostora kojeg smo prije desetak godina interijerski riješili, te pratili putem nekoliko preinaka tijekom vremena, obratio nam se sa željom za novim preinakama. Postojeći CAD nacrt izvedenog stanja prethodne adaptacije smo unijeli kao podlogu, te u Revitu izmodelirali samo dio prostora koji se trebao adaptirati.

Revit, unos modela na CAD podlogu

1 – Unos modela na CAD podlogu

Jedna od korisnih funkcija ugrađenih u Revit je mogućnost modeliranja i prikazivanja različitih varijantnih rješenja unutar istog modela. Investitor ima mogućnost usporediti različite opcije, dok projektant sve verzije može držati u jednom modelu do konačne odluke o izboru verzije.

Revit, prikaz različitih verzija idejnog rješenja

2 – Prikaz različitih verzija idejnog rješenja

Elementi od kojih je načinjen model u Revitu mogu pripadati određenoj fazi gradnje: postojeće, rušenje, novo, budući aneksi i sl. Iskoristili smo tu mogućnost da prikažemo postojeće stanje, rušenja te novu gradnju u svim pogledima (tlocrtima, presjecima, tlocrtima spuštenog stropa).

Revit, postojeće stanje, plan rušenja, plan zidanja

3 – Postojeće stanje, plan rušenja, plan zidanja

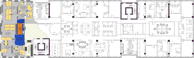
Kako je investitor u međuvremenu donio odluku o adaptaciji ostatka prostora, postojeći model smo na opisani način proširili na ostatak etaže.

Revit, model cijele etaže

4 – Model cijele etaže

Tijekom projektiranja, projektant i investitor mogu imati uvid u konačni rezultat zahvaljujući činjenici da je vizualizacija sastavni dio rada u Revitu.

Revit, zatečeno stanje

5 – Zatečeno stanje

Revit, konačna verzija projekta

6 – Konačna verzija projekta

PRAĆENJE PROJEKTA KROZ SVE FAZE

Projektiranje novogradnje u Revitu započinje unosom geodetske podloge u CAD zapisu i njeno pretvaranje u trodimenzionalni teren.

Revit, topografski model s vidljivim prilaznim putem i granicama parcele

7 – Topografski model s vidljivim prilaznim putem i granicama parcele

Uz uobičajene arhitektonske mogućnosti prezentacije, presječene perspektive omogućuju projektantu i investitoru bolje razumijevanje projekta.

Revit, tlocrt i presječena perspektiva

8 – Tlocrt i presječena perspektiva

Pridržavanjem pravila izrade modela na način na koji se zgrada u stvarnosti izvodi, jednostavno dobijemo precizan plan oplate koji se dinamički mijenja kako unosimo promjene na projektu.

Revit, plan oplate

9 – Plan oplate

Detalji se rješavaju kao „živi“ nacrt koji prati promjene na modelu, uz dodatno grafičko i tekstualno opisivanje.

Revit, detalj balkona

10 – Detalj balkona

Modelirani prikaz volumena i površina za obračun komunalne naknade se obnavlja i automatski obračunava u tablicama prema ranije definiranim formulama, u skladu s pravilnikom.

Revit, volumeni - pogled s jugoistoka i sjeverozapada

11 – Volumeni, pogled s jugoistoka i sjeverozapada

Revit, obračun površina i volumena

12 – Obračun površina i volumena

Konačni  izgled projekta se može vidjeti i bez posebnog dodatnog modeliranja.

Revit, model objekta

13 – Model objekta

 
 
“Autodesk Revit Architecture je projektantski alat koji je savim opravdao naša očekivanja. Vrijeme izrade projekata je kraće, a cjelovito projektiranje onemogućuje neusklađenosti. Grafički prikazi se mogu prilagoditi  potrebama korisnika, tako da zadovoljavaju lokalne standarde.”
 
URED OVLAŠTENOG ARHITEKTA TEA HELMAN JUKIĆ
"Rudeška cesta 160 c, Zagreb
tel:+385/1/3866 431
e-mail: tea@helman-jukic.comhrvoje@helman-jukic.com