BIM alat za arhitekte, građevinare i projektante instalacija
Autodesk Revit je BIM (Building Information Modeling) alat koji vam omogućuje da u jednom okruženju izradite projekt od koncepta do izvedbe. Kroz rad na 3D modelu unaprijeđen je pristup projektiranju, omogućena analiza projektnih ideja, kao i vjerna interpretacija vaše vizije kroz sve faze projekta i posve nov način suradnje sa ostalim sudionicima na projektu.
Značajke

Parametarsko projektiranje
Parametarski elementi su osnova izrade modela u Revitu, dijelovi koji mogu biti sasvim jednostavni ili posve složeni, ispunjeni informacijama.

Suradnja u realnom vremenu
Koncept timskog rada na projektu, worksharinga, omogućuje svim sudionicima na projektu da rade u isto vrijeme na istom centralnom modelu.

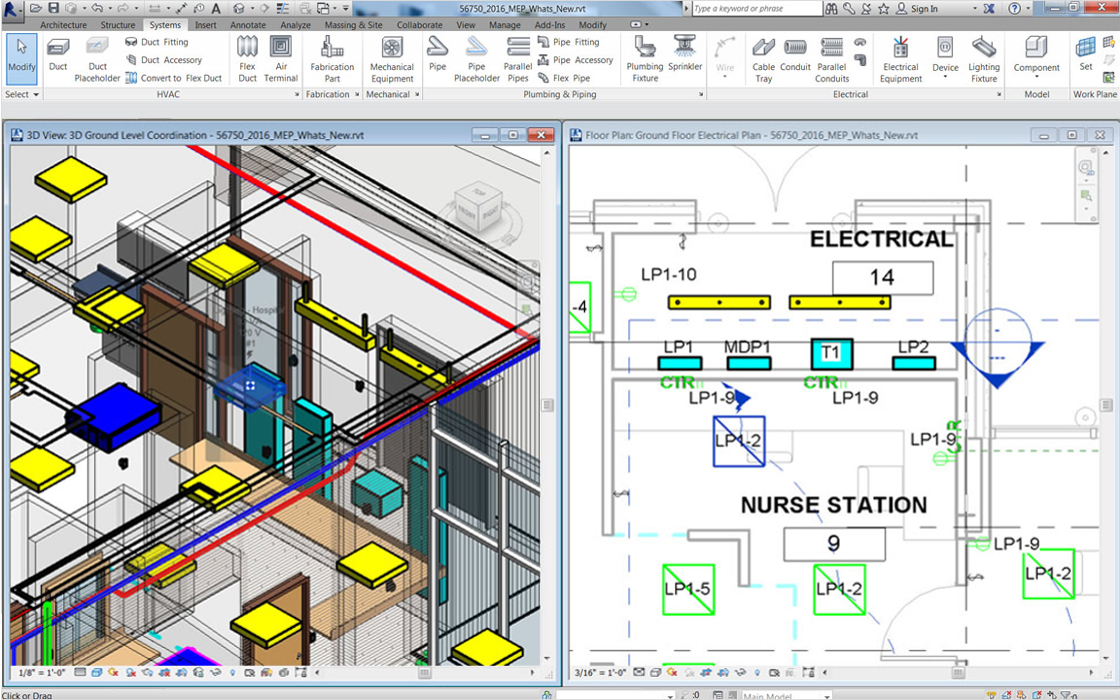
Bolja koordinacija projekta
Mogućnost greške ili propusta je smanjena. Svi podaci o modelu su spremljeni na jednom mjestu, crtamo jednom, bilo u 3D-u ili nekom od pogleda, a sve promjene se automatsku ažuriraju u čitavom modelu.
Arhitektura

Konceptualno modeliranje
Alat za izradu naprednih formi i slobodnih oblika unutar Revit okruženja omogućuje lak prijelaz iz koncepta u sljedeću fazu projekta, rad sa parametarskim elementima i izradu dokumentacije.

Vizualizacija
3D model je virtualno potpuno izgrađeni objekt prije no što zaista ide na gradilište. Omogućuje vam da istražite, potvrdite i raspravite s kolegama sve što će se kasnije realizirati u stvarnosti. Plus da u bilo kojem trenutku imate lako dostupne, ažurne i kvalitetne vizualizacije!

Dokumentacija
Sve informacije o građevini su pohranjene u modelu te je izrada dokumentacije sada zapravo strukturiranje podataka i označavanje elemenata dobivenih iz modela.
Konstrukcije

Modeliranje 3D armature
Projektirajte armaturu u naprednom Building Information Modeling (BIM) okruženju. Ugradnja 3D armature u model omogućava veću detaljnost i točnost projekta te laku radu dokumentacije.

Analize
Alati u oblaku omogućuju izradu statičkih analiza dok vi istovremeno radite u softveru ili paralelno vršite druge analize.

Izrada analitičkog modela
Izrada analitičkog modela je automatska dok se usporedno crta fizički model. Revit stvara fizički model za izradu dokumentacije i analitički model za analize.
Instalacije

Sustavi grijanja, ventilacije i hlađenja
U Revitu se izrađuju 3D sustavi cijevi i kanala, automatizirano vrše proračuni toplinskog opterećenja te koriste alati za dimenzioniranje cijevi i kanala dok je vaš projekt u realnom vremenu usklađen i koordiniran sa ostalim sudionicima na projektu.

Sustav vodovoda i kanalizacije
Projektiranje sustava vodovoda i kanalizacije se odvija u trodimenzionalnom okruženju, od gotovih elemenata iz vaše baze te se automatizirano ili ručno spaja sa svim dijelovima i uređajima u cjelinu.

Projekt elektroinstalacija i rasvjete
U Revitu izrada elektrotehničkog projekta obuhvaća elektroenergetske, protupožarne, telekomunikacijske i signalne sustave u BIM okruženju. Veća je brzina i točnost, automatizirana izrada proračuna i dokumentacije te time projekt kvalitetniji.